BRECO-Elementi di costruzioni SA
 
Azienda Soluzioni Prodotti News Contatto Servizio
d | f | i
 
BRECO-Canale a parapetto 24. CPA 24    Specificazioni (PDF)
 

Tipi / componenti

Prodotto

Dimensioni

No. art.

Descrizione

 
Tabella sistema
 
Canali a parapetto
CPA 1
CPA 2
CPA 3
CPA 4
CPA 5
CPA 6
CPA 7
CPA 8
CPA 9
CPA 10
CPA 11
CPA 12
CPA 13
CPA 14
CPA 18
CPA 20
CPA 21
CPA 22
CPA 23
CPA 24
CPA 25
CPA 26
CPA 27
CPA 28
CPA 29
CPA 30
CPA 31
 
Accessori
ACP 1
 
 
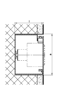
BRECO-Canale a parapetto 24
BRECO-Canale a parapetto 24
 l  x  a  
 
 70 x 130 63072
 90 x 130 63092
   
   
   
   
   
 80 x 170 63083
 80 x 210 63084
100 x 170 63103
100 x 210 63104
 
 
 
  • base in lamiera d'acciaio zincata
  • spigolo in alluminio
  • coperchio in alluminio estruso (chiusura a calamita)
  • angolo di rinforzamento in acciaio
  • binario DIN per apparecchi
  • portacavi
  • lunghezza standard 3'000 mm
  • superficie: anodizzata naturale o verniciata a polvere in tinte RAL
 
  Installazione